Search:
Home
Amenities
Spaces
Properties
For Tenants
News
Ownership
Contact
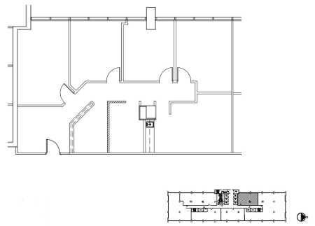
Suite 700
Building 300
Building 400
Building 435
Building 600
Building 600
1,747 square feet
Floor plan
PDF